Eladó jó állapotú iroda irodaházban Miskolc Belváros
395.000.000 Ft
Bővebb információ
Eladó 2591 m2 iroda irodaházban, Miskolc
iroda ingatlanhirdetés
Miskolc központjában, búzatér szomszédságában, 6 szintes (pince, földszint és 4 emelet) irodaépület „üzletház” besorolással és a hozzá tartozó, de külön helyrajzi számon található „üzem” besorolású ingatlan eladó!
Az ingatlan részletes ismertetése:
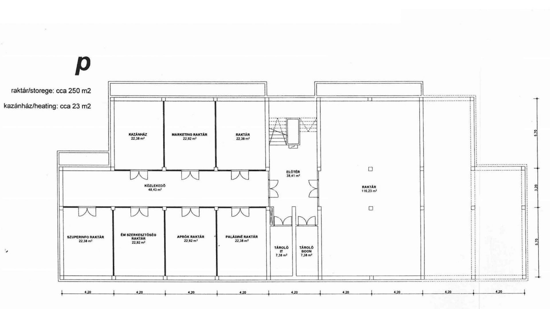
– Kivett üzem:
Telek terület 2461 m², amin egy 644 m² -es vasbeton tartószerkezetes, egy légterű, csarnok található, amit úgy alakítottak ki, hogy a tartó oszlopok között, egymástól független, szekcionált garázskapukon keresztül lehet a csarnokba bejutni.
A területen jelenleg 20 db szeméjgépkocsi parkoló van kialakítva.
– Üzletház (Iroda épület)
Alapterülete tulajdoni lap szerint 506 m², ezen a területen kialakított irodák összes hasznos alapterülete 2591 m².
Az épület a 80-as években vasbeton oszlopos szerkezettel épült, így a szintek egybefüggő teret alkotnak, amit könnyen variálhatóan fel lehet osztani, akár egymástól független bérlők fogadására is alkalmas.
Fűtése önálló Fan Coil fűtő/hűtő rendszer
levegő cserélő és szellőztető rendszerrel., A pince és legfelső szint kivételével minden szinten külön nő-férfi WC. és mosdók lettek kialakítva. Teakonyha szintén minden szinten megtalálható.
Közlekedés:
Villamos és városi, ill. távolsági buszmegállók néhány perc séta távolságban elérhetők.
Autópálya 7 perc (3,9 km)
BOSCH 9 perc (3,7 km)
Déli ipari park 15 perc (7 km)
(hivatkozási szám: M112437)
Ha érdekli az ingatlan, további képeket weboldalunkon láthat. Az ingatlan azonosítója: 112437
Hirdetés adatlapja
| Szándék az ingatlannal | eladó |
| Ingatlan kategória | Iroda-üzlet-vendéglátóegység |
| Kitől? | közvetítőtől |
| Ország | Magyarország |
| Megye | Borsod-Abaúj-Zemplén megye |
| Település neve | Miskolc |
| Hirdető neve | Takács Alán |
| Telefonszám | +36204474101 |
| Webcím | https://www.gammaingatlan.hu/ingatlan/112437 |
Képgaléria
|
|
Hirdetés megosztása
Itt üzenhet a hirdetőnek
Be kell jelentkezni ezen hirdetés adatairól történő érdeklődéshez


