Eladó közepes állapotú üzlethelyiség nem üzletközpontban Miskolc Avas I. ütem
69.900.000 Ft
Bővebb információ
Befektetési Lehetőség Miskolcon: 296 m2-es, Két Szintes Ingatlan, Jelenleg Fitneszterem, Akár Bérlővel Együtt!
üzlethelyiség ingatlanhirdetés
ÁRCSÖKKENÉS!
Régi ár: 74.9 M Új ár: 69.9 M
Miskolcon, a Testvérvárosok útján eladó egy kiváló elhelyezkedésű, két szintes, összesen 296 m²-es ingatlan, amely jelenleg is működő kondicionáló és fitneszteremként üzemel. Ideális befektetés, hiszen egyedi megállapodás alapján akár a jelenlegi bérlő is maradhat, biztosítva az azonnali bevételt. Az épület rugalmasan alakítható, így számos egyéb üzleti célra is alkalmas (pl. irodák, orvosi rendelő, szépségszalon, oktatási központ).
Kérjük, vegye figyelembe, hogy az ingatlan vételára nem tartalmazza a képeken látható berendezéseket és felszereléseket, azok a jelenlegi bérlő tulajdonát képezik.
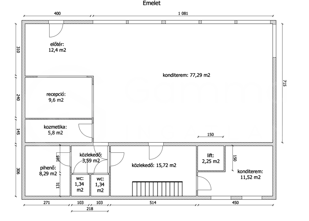
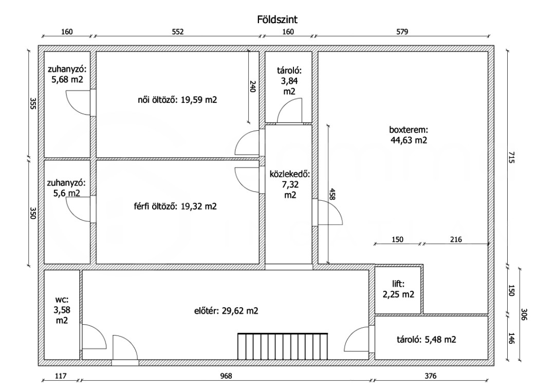
Helyiséglista:
Emelet:
-Funkcionális területek: Tágas konditerem, recepció, kozmetika, pihenő.
-Kiszolgáló helyiségek: Előtér, közlekedő, 2 db WC.
Megjegyzés: A lift jelenleg üzemen kívül van.
Földszint:
-Sportolói területek: Bokszterem, női és férfi öltözők zuhanyzókkal.
-Kiszolgáló helyiségek: Előtér, közlekedő, WC, 2 db tároló.
Környezet:
Az ingatlan Miskolc népszerű, forgalmas részén, az Avas városrészben I ütemében található, közvetlenül a Testvérvárosok útján lévő üzletházban. Panelépítésű társasházak között elhelyezkedő épület, melyben irodák, lakások és üzletek is működnek, kiváló ügyfélbázist és állandó látogatottságot biztosít.
Közlekedés:
Az ingatlan kitűnően megközelíthető autóval és helyi tömegközlekedéssel egyaránt.
Az aszfaltozott út közvetlenül az épülethez vezet, biztosítva a problémamentes rakodást.
A parkolás ingyenes.
(hivatkozási szám: M120338)
Ha érdekli az ingatlan, további képeket weboldalunkon láthat. Az ingatlan azonosítója: 120338
Hirdetés adatlapja
| Szándék az ingatlannal | eladó |
| Ingatlan kategória | Iroda-üzlet-vendéglátóegység |
| Kitől? | közvetítőtől |
| Ország | Magyarország |
| Megye | Borsod-Abaúj-Zemplén megye |
| Település neve | Miskolc |
| Hirdető neve | Takács Alán |
| Telefonszám | +36204474101 |
| Webcím | https://www.gammaingatlan.hu/ingatlan/120338 |
Képgaléria
|
|
Hirdetés megosztása
Itt üzenhet a hirdetőnek
Be kell jelentkezni ezen hirdetés adatairól történő érdeklődéshez


