Kiadó jó állapotú iroda irodaházban Miskolc Belváros
450.000 Ft
Bővebb információ
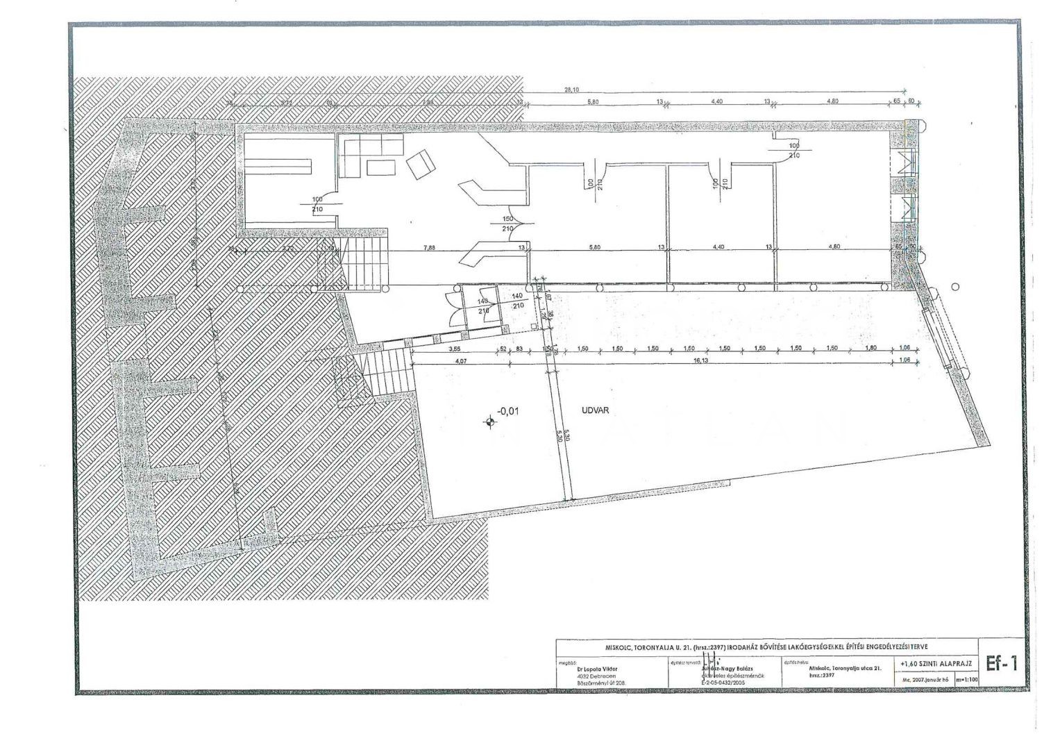
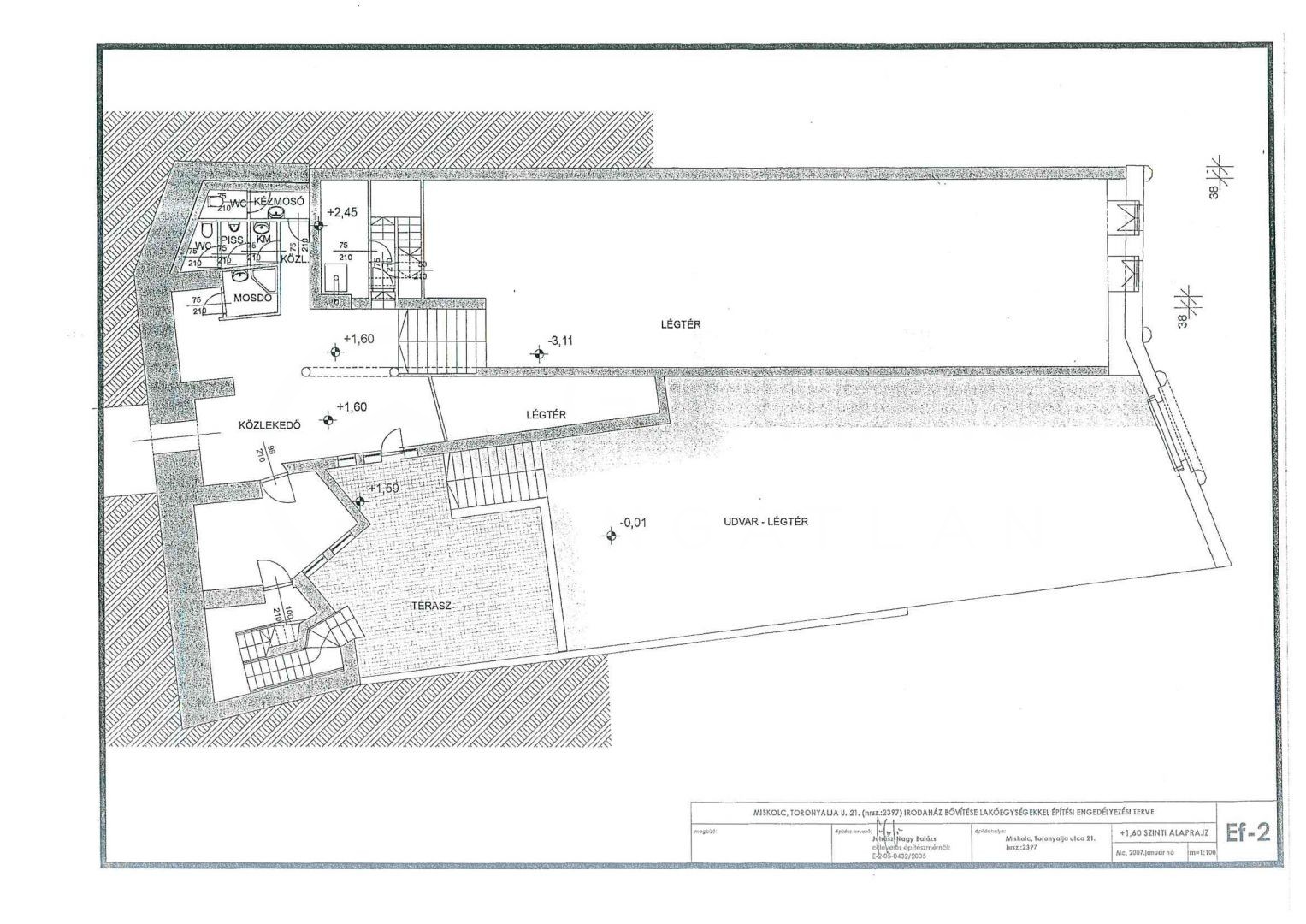
Miskolc belvárosában KIADÓ egy eltolt szintes, 220 m2-es többféle hasznosításra is alkalmas irodaház!!!
iroda ingatlanhirdetés
Miskolc belvárosában KIADÓ egy eltolt szintes, 220 m²-es többféle hasznosításra alkalmas irodaház, amely 866 m²-es telken helyezkedik el!!!
Helyiséglista:
-előtér
-6 db iroda
-mosdó
-WC.
Az igatlan belső eltolt szintes, a földszinti rész 160 m², míg az eltolt szint 60 m²-es.
A tégla építésű irodaház 866 m²-es telken helyezkedik el, amely további bővítésre is kiválóan alkalmas.
A falak festettek, a padlózat járólappal burkolt.
A nyílászárók fa tokozású hőszigeteltek.
A fűtést gázkazán biztosítja radiátor hőleadókkal.
Az ingatlan számos tevékenységre alkalmas, többek között átalakítható lakássá, rendelővé, stb.
Bérleti díj: 450.000 Ft + rezsi + 2 havi kaució
A közelben megtalálható bolt, étterem, piac, egészségügyi központ.
Tömegközlegedés 150 m-re elérhető.
Amennyiben hirdetésem felkeltette érdeklődését keressen a megadott telefonszámon.
(hivatkozási szám: M116615)
Ha érdekli az ingatlan, további képeket weboldalunkon láthat. Az ingatlan azonosítója: 116615
Hirdetés adatlapja
| Szándék az ingatlannal | kiadó |
| Ingatlan kategória | Iroda-üzlet-vendéglátóegység |
| Kitől? | közvetítőtől |
| Ország | Magyarország |
| Megye | Borsod-Abaúj-Zemplén megye |
| Település neve | Miskolc |
| Hirdető neve | Hausel László |
| Telefonszám | +36204552205 |
| Webcím | https://www.gammaingatlan.hu/ingatlan/116615 |
Képgaléria
|
|
Hirdetés megosztása
Itt üzenhet a hirdetőnek
Be kell jelentkezni ezen hirdetés adatairól történő érdeklődéshez


