Tóparthoz közeli lakóház Délegyházán – 80 méterre a víztől!
35.000.000 Ft
Bővebb információ
Tóparthoz közeli lakóház Délegyházán – 80 méterre a víztől!
Délegyháza egyik kedvelt, csendes utcájában – a Fagyöngy utcában – eladásra kínálok egy 336 m²- s telken álló, 50 m²- s, másfél szobás családi házat, mindössze 80 méterre a horgásztótól.
Az ingatlan belterületi, kivett lakóház és udvar besorolású, per- és tehermentes, egyetlen tulajdonostól.
A ház a ’70-es évek végén téglából épült, jelenleg felújítandó állapotban van, így új tulajdonosa saját igényei szerint formálhatja.
Közművek: víz, villany, gáz, csatorna rendelkezésre állnak.
Az udvarban 3 autó számára is kényelmes parkolási lehetőség adott.
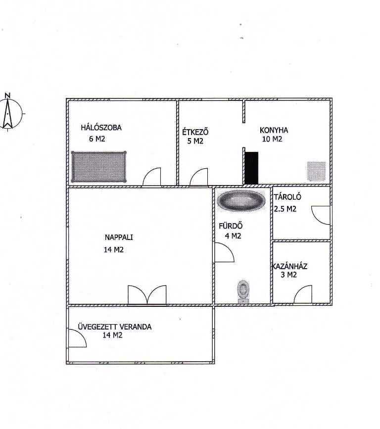
A belső tér elrendezése:
• üvegezett veranda,
• nappali (14 m²),
• hálószoba (6 m²),
• kádas fürdőszoba (4 m²),
• étkező (5 m²),
• konyha (10 m²),
• kazánház (3 m²) és tároló (2,5 m²).
A természet szerelmeseinek ideális választás — a háztól pár lépésre nagy kiterjedésű horgásztó, a közelben pedig a Kiskunsági Nemzeti Park, az Ócsai Tájvédelmi Körzet és a Ráckevei-Duna található.
Tökéletes otthon vagy nyaraló azoknak, akik a nyugalmat, a vízpart közelségét és a természetet keresik.
A környék igazi természeti kincs: tizenkét kavicsbánya-tó, a Kiskunsági Nemzeti Park és a Ráckevei-Duna közelsége varázslatos hangulatot teremt.
Ha egy helyet keresel, ahol lelassulhat az idő, ez az ingatlan tökéletes kiindulópont lehet álmaid otthonához.
Ár: 35. 000. 000 Ft
További szolgáltatások:
– Ingatlaneladásban segítség
– Energetikai tanúsítvány 72 órán belül
– Ingyenes hitelügyintézés
– Jogi háttér és földhivatali ügyintézés
– Országos adatbázisból e-mailes ajánlatküldés
Tel: +36705581160
Hirdetés adatlapja
| Szándék az ingatlannal | eladó |
| Ingatlan kategória | Ház-családi ház |
| Kitől? | közvetítőtől |
| Alapterület (m2) | 50 |
| Alapterület besorolás (m2) | 46-60 m2 |
| Szoba szám (félszobával együtt) | 2 szoba |
| Ország | Magyarország |
| Megye | Pest megye |
| Település neve | Délegyháza |
| Utca | Fagyöngy u. 3 |
| Hirdető neve | Hesu |
| Telefonszám | 06304932550 |
| Webcím | https://ingatlan.com/35057277 |
Képgaléria
|
|
Hirdetés megosztása
Itt üzenhet a hirdetőnek
Be kell jelentkezni ezen hirdetés adatairól történő érdeklődéshez


