Kiadó emeltszintű szerkezetkész iroda irodaházban Miskolc Belváros
990.000 Ft
Bővebb információ
Miskolc belvárosában, a Pátria szolgáltató házban, I. emeleti 459 m2 üzlethelyiség KIADÓ!!
iroda ingatlanhirdetés
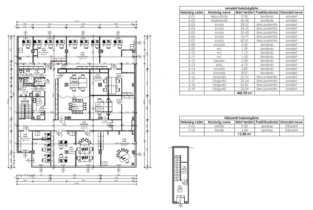
Miskolc belvárosában, a Pátria szolgáltató házban, I. emeletén saját bejáratú önálló 459 m² iroda, üzlethelyiség hosszútávra bérbeadó.
Bérleti díj: 990.000 Ft/hó + rezsi +2 havi kaució
Az ingatlan jelenleg 10 irodából, tárgyalóból, konyhából, vizesblokkokból álló irodahelyiség.
Az irodaház földszinti részen üzletek, étterem, gyógyszertár, találhatóak.
A frekventált belvárosi elhelyezkedés ideális az ingatlan funkciójához, mivel a város jelentős gyalogos forgalma itt halad el a belváros egyetlen villamos vonalával együtt. A gépjármű és teherforgalom is megoldott a Kossuth L. út felől, ahol nagyméretű, fizetős parkoló fekszik.
Az épület szomszédságában hasonló jellegű üzletek és szolgáltatók működnek, melyek nagy forgalmat bonyolító bankok, biztosítók.
Műszaki adatok:
– Az ingatlan kialakítása 5,4 m x 5,4 m rács kiosztású betonoszlopos, melyek között könnyűszerkezetes elválasztó falak lettek kialakítva, ezért a jelenlegitől eltérő egyéb alternatív hasznosítása kiváló.
– A nyílászárók alumínium szerkezetűek.
-A falak festettek, a burkolat járólap és padlószőnyeg vegyesen.
– Az épület a városi távhő szolgáltatással fűtött.
A frekventált elhelyezkedés, és jól alakítható, újszerű belső terek páratlan lehetőségeket kínálnak az egyéb üzleti célok megvalósítására.
Ha az ingatlan felkeltette az érdeklődését, hívjon bizalommal!
(hivatkozási szám: M106438)
Ha érdekli az ingatlan, további képeket weboldalunkon láthat. Az ingatlan azonosítója: 106438
Hirdetés adatlapja
| Szándék az ingatlannal | kiadó |
| Ingatlan kategória | Iroda-üzlet-vendéglátóegység |
| Kitől? | közvetítőtől |
| Ország | Magyarország |
| Megye | Borsod-Abaúj-Zemplén megye |
| Település neve | Miskolc |
| Hirdető neve | Hausel László |
| Telefonszám | +36204552205 |
| Webcím | https://www.gammaingatlan.hu/ingatlan/106438 |
Képgaléria
|
|
Hirdetés megosztása
Itt üzenhet a hirdetőnek
Be kell jelentkezni ezen hirdetés adatairól történő érdeklődéshez


